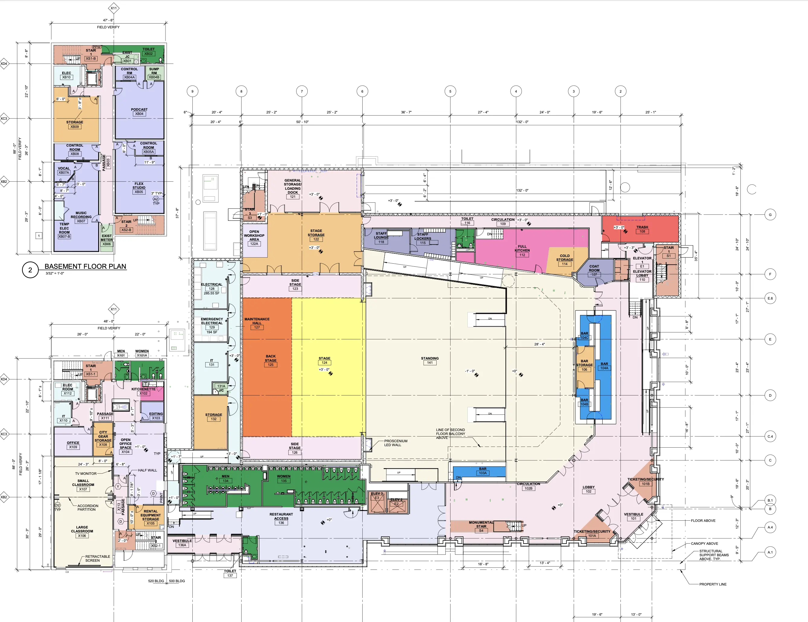
Ovation Center for Music and Arts is a transformative space for residents and visitors alike to enjoy and create art, coming to Downtown Lansing in early 2027. As a flexible-use space, the Ovation is able to transform itself for all types of performances: Large-scale concerts. Intimate shows. Community events. And so much more.
At the core of the Ovation will be its two-story main stage, with a large-scale capacity for more than 2,000 fans. A second performance area will be an ideal spot for intimate performances, like acoustic sets, comedy shows, and film screenings. The Ovation will also offer community spaces and creative resources such as podcast studios, a full music recording studio, and creator suites. And on top of it all, a rooftop terrace and lounge will invigorate Downtown Lansing’s nightlife.
Got more questions? We’ve got answers. Read up on our FAQs.
- Location: 520 S Washington Ave, Lansing, MI (The corner of South Washington Ave. and West Lenawee St. in Downtown Lansing)
- Capacity: 2,025 standing patrons for a single performance


